Skip to Main Content
Create a Website Account
- Manage notification subscriptions, save form progress and more.
Website Sign In
City Hall
Parks
Police
Public Works
Search
How Do I...
City Hall
Community
Business
Services
Home
Services
Departments
Public Works
Active Development
Sunset Hills Subaru
Sunset Hills Subaru
Description
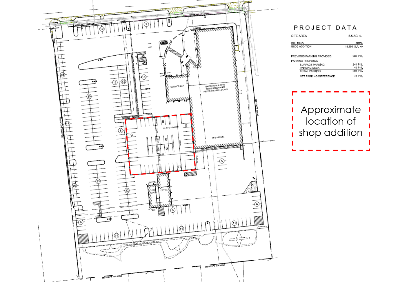
Sunset Hills Subaru is requesting to expand the existing shop that will be approximately 18,700 square feet at their existing auto dealership facility. The proposed shop expansion would add 24 service bays and have upper-level parking.
Submittals
Submittal 1 - April 8, 2026
Agendas
Project is under review before an agenda may be assigned
Sunset Hills Subaru
Chick-fil-A
13165 Maple Drive
Divine, A Boutique Medspa
Missouri American Water
Quick Trip
Friendship Village
Manors at Lynstone Park
Missouri American Water
First Community
Gates Manor
Sunset Reserve
Vistas at Stone Castle
Hampton Inn
Bombers Rugby
*** PUBLIC NOTICES ***
Report a Concern
Agendas & Minutes
Notices & Hearings
Text My Gov
Street Projects
Code of Ordinances
Site Map
Accessibility
Privacy Policy & Disclaimer
Copyright Notices
Inclusion Statement
/QuickLinks.aspx
Government Websites by
CivicPlus®
Loading
Loading
Arrow Left
Arrow Right
[]
Slideshow Left Arrow
Slideshow Right Arrow